Victorian Home to Passive House Plus

Brooklyn, NY

Since its introduction and proliferation in the mid 20th Century, the detached wood frame single-family home has come to epitomize American housing.

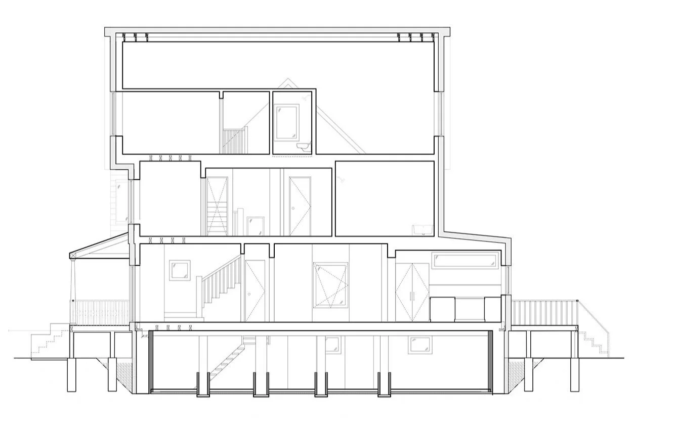
Because of the widespread popularity of this typology it is critical to adapt to the Passive House standard. The existing building, located in in Ditmas Park, Brooklyn, NY is a 3-story wood framed house built in 1907. The building was designed in the Victorian style typical of the area, and it’s characteristic features were largely preserved in the renovation. The existing structure was uninsulated 2x4 wood framed walls. The existing windows and building exterior were poorly maintained and in need of replacement, making the project a perfect candidate for an EnerPHit retrofit. The general scope of work included re-cladding and insulating the building envelope, updating interior finishes, and opening up the floor plan to improve functionality of interior spaces. The specific items that were replaced include:

  • Removal of exterior cladding and windows

  • New sheathing / air barrier

  • New continuous exterior insulation

  • New triple glazed windows

  • New ERV and air handler unit for heating and cooling

  • New heat pump hot water heater

  • New interior finishes

  • New foundation waterproofing, insulation, and drainage

Passive House Strategies

No chimney required in passive house = more space!

Before

After

Intello Air Barrier

Before and After - Insulation and Airtightness at Existing Foundation Wall

Section Depicting Insulation

Mineral Wool at Exterior

Design

Interested in seeing the renovation?

See the finished details

  • Principals
    Marianne Hyde
    Stas Zakrzewski

    Project Team
    Avery Gray
    Deniz Secilmis
    Garret Fullam

  • Structural Engineer
    A Degree of Freedom

    MEPS
    RJD Engineering


  • Photography
    ZH Architects

Previous
Previous

Challenges of an Enerphit Addition